摘要:在城市快速发展进程中,大型商业综合体作为一种集购物、餐饮、休闲、办公于一体的复合型公共建筑,具有人员高度密集、空间结构复杂、可燃物分布广泛等突出特征。一旦此类场所发生火灾,火势往往蔓延迅速,烟气扩散路径多变,极易造成重大人员伤亡。本文基于消防救援实战经验,结合近五年典型火灾案例,系统分析大型商业综合体应急疏散过程中存在的突出矛盾与瓶颈问题,提出针对建筑结构特征与人流行为规律的疏散路径优化原则,并构建贴近真实灾情的应急演练改进机制,旨在为商业综合体消防安全管理体系提供具有实践指导意义的技术路径与管理策略。
摘要:针对当前企业职工消防应急处置能力薄弱、培训内容同质化与形式化突出的问题,本文从培训方法创新角度展开系统探索,构建了以“精准设计-高效实施-选代优化”为核心的消防应急培训全流程方法体系。该体系在培训设计层面提出岗位适配型、实景模拟型与互动参与型三类精准化培训模式,注重培训内容与企业实际风险、岗位特点的深度结合;在实施路径层面,建立分层组织、资源整合与过程管控相协同的高效运行机制;在效果提升层面,形成量化评估、多维反馈与动态调整相衔接的持续优化闭环。本文旨在通过方法体系的系统重构,推动企业消防培训从“普适性传授”向“精准化赋能”转变,为企业提升职工消防应急处置能力和消防安全管理水平提供具有实践指导价值的参考方案。
摘要:本文聚焦建筑工程防火管理体系的构建与实施策略,系统探讨了防火管理在保障建筑安全与降低火灾风险中的关键作用。通过整合组织架构、责任制度、风险评估与隐患排查等多个维度,构建了系统化的管理体系框架。同时,提出以技术防控、培训演练、监督检查和重点环节管控为核心的实施路径,旨在为提升建筑工程防火管理的系统性、规范性和实效性提供理论依据与实践参考。
摘要:石油化工企业作为典型的高危行业,生产过程涉及大量易燃易爆物质,工艺条件复杂,极易引发火灾、爆炸等事故,严重威胁人员生命财产安全。本文在分析石油化工企业火灾特点的基础上,指出当前行业在安全设计标准系统性不足、消防安全管理责任落实不到位、员工风险意识与应急技能欠缺等方面存在的突出问题,并有针对性地提出提升本质安全设计标准、健全并压实全员消防安全责任体系、强化员工常态化培训与应急演练等对策,旨在为石油化工企业构建更科学、系统、可操作的消防安全管理体系提供参考,从而有效预防与减少重大火灾爆炸事故的发生,保障企业可持续发展与社会公共安全。
摘要:当前建筑工程正朝着超高层、大跨度、多功能方向发展,消防安全风险的耦合性与传导性显著增强,已成为制约工程管理质量的关键瓶颈。火灾事故的发生并非单一因素所致,而是设计缺陷、施工违规与运营失管等多环节问题叠加的结果。本文以建筑工程全生命周期为视角,围绕“风险识别-评估-控制”三阶逻辑,探索消防安全系统化管控路径。通过构建包含多项核心指标的评价体系、融合BIM与物联网的智能监测技术、建立“五级责任传导”机制,实现对火灾风险的动态预警与分级处置。实践表明,技术创新与制度完善的深度融合,可使建筑工程火灾隐患整改率得到有效提升,为全生命周期安全运维提供切实可行的解决方案。
摘要:本文深入分析了新形势下医院消防安全管理工作面临的挑战。在此基础上,提出了医院消防安全管理工作的创新路径,即构建基于物联网和人工智能技术的电气火灾智能监测与预警系统,实现从被动报警向主动预防转变;优化高层建筑分区疏散方案与垂直救援通道设计,建立立体化救援响应体系;针对手术室、ICU等重点区域实施定制化的防火分隔与应急处置方案。通过实践案例验证,上述创新措施能够有效提升医院消防安全管理的系统性和有效性,为构建适应现代医疗发展的消防安全管理体系提供了科学依据和实践参考。
摘要:随着新能源设施在社区的广泛应用,其与物业消防管理的协同发展成为保障社区安全、推动绿色可持续发展的关键。本文深入剖析物业消防管理与新能源设施协同发展的重要性,构建涵盖资源整合调配、风险防控协同、权责清晰划分的理论框架,并结合实际提出构建新能源设施消防适配建设标准与物业场景嵌入机制、建立物业消防与新能源设施联动巡检及应急响应体系、开展物业人员新能源消防专项培训与业主安全宣教活动、推动物业消防智慧平台与新能源设施管理系统数据互通等实践路径,旨在为物业行业实现安全与绿色发展的双重目标提供理论支撑与实践指导。
摘要:建筑工程防火管理是保障工程质量与人民群众生命财产安全的重要环节。本文系统探讨了建筑工程防火管理体系的构建与实施策略,从火灾特点分析入手,围绕组织架构、制度设计、技术防控和教育培训四个方面展开论述,并分阶段阐述了设计、施工、验收及使用等各环节的具体管理措施。研究指出,只有通过全过程、多层级、系统化的管理体系构建,并结合科学、合理的实施策略,才能有效预防和控制建筑工程火灾风险,为建筑行业的持续、安全发展提供坚实保障。
摘要:随着自然灾害与公共安全事件日益频发,现代航空救援体系正朝着高效、智能与协同的方向快速发展。传统直升机救援虽综合能力强,但面临成本高昂、风险较大、环境感知受限等固有局限。无人机的迅速崛起,凭借其部署灵活、零人员风险、使用成本低等优势,能够弥补直升机的不足,可考虑将其应用于灾情侦察与救援指导等任务。本文旨在系统探讨无人机与直升机在综合救援中的协同应用模式、作业机制与关键技术。首先,对比分析了两者各自的特点与局限性;其次,聚焦协同作业的典型场景,如“侦察-决策-行动”闭环、通信中继、物资投送及特殊环境作业,并构建了相应的协同系统架构;再次,深入剖析了当前协同救援在技术、法规与操作层面面临的挑战,提出了有针对性的应对策略;最后,对未来无人机与直升机深度融合的“系统化救援”发展趋势进行了展望。研究表明,构建无人机与直升机的系统化协同体系,能够显著提升救援效率、降低人员风险、优化资源配置,是发展下一代航空应急救援体系的核心方向。
摘要:合理选用建筑防火材料是确保工程消防安全的核心环节,对火灾防控、人员疏散及财产保护具有决定性影响。随着建筑形态与功能日趋复杂,防火材料除须满足基础阻燃要求外,还应兼顾结构适配性、环境耐受度与可靠性。然而,当前实践仍存在因压低成本导致的质量缺陷、标准更新滞后、设计选材与实际维护脱节等问题。本文通过剖析材料性能与安全管理的内在关联,从全生命周期视角出发,提出优化材料选用策略、完善技术标准体系、构建智能动态监管机制等路径,以系统提升建筑工程的综合抗灾韧性。
摘要:林区作为维护生态安全、促进绿色发展的重要空间,其防火能力直接关系生态系统的稳定与林业资源的可持续利用。近年来,受全球气候变化和区域人为活动影响,森林火灾频发且强度加剧,对现有火灾防控与应急救援体系提出更高要求。道路系统与消防蓄水设施是林区防灾的两大关键基础设施,而当前普遍存在林区道路密度低、等级不足、蓄水池数量有限且分布不均等问题,加之两者之间缺乏系统性协同,火灾时往往面临“车辆难通行、水源难获取”的双重困境,严重影响救援效率。本文以昆明市西山林场为研究对象,通过实地调研与数据分析,系统梳理其道路及蓄水设施在规划、建设与管理中存在的问题,进而提出“道路-蓄水-调度”协同优化的整体思路。在火险高发区域,优先规划水源布点,结合道路网络提升取水可达性,实现设施空间布局与应急调度的一体化,同时建立长效维护与动态管理机制,保障关键设施在防火期与日常管护中持续、有效运行。研究结果为提升林区火灾综合防控能力、完善应急救援保障体系、促进区域绿色、安全发展提供了实践参考与决策依据。
摘要:土木工程现场消防设施的合理设置,是保障施工安全的重要基础。随着工程建设规模不断扩大、结构日趋复杂,施工现场火灾风险日益凸显,科学配置消防设施已成为行业关注的重点。本文结合现行消防技术标准与工程实践经验,系统地梳理了施工现场关键消防设施的配置要求与管理措施,旨在为提升现场火灾防控能力、降低安全事故发生概率提供参考。
摘要:随着城市化进程的加速,大型城市综合体已成为现代都市发展的核心单元。其功能高度复合、人员密集、系统高度集成的特点,对市政给排水与消防系统的安全、高效与可持续运行构成了严峻挑战。传统系统多依赖人工操作与静态设计,在面对突发性高负荷、设备老化失效及多系统协同调度等问题时,往往应对乏力。在此背景下,以智能化技术提升系统的整体韧性、动态响应能力与精细化管理水平,成为了一条关键路径。本文聚焦物联网、大数据与人工智能等新一代信息技术,探讨其在城市综合体给排水与消防系统中的集成应用。构建了集“感知层、传输层、数据层、应用层”于一体的智能化框架,旨在为高密度建筑环境中的关键市政基础设施数字化、智能化转型提供理论参考与实践框架,从而为智慧城市与安全城市建设贡献力量。
摘要:本文聚焦大型水电站地下厂房消防喷淋系统,在解析该系统组成特点与特殊性的基础上,系统地梳理了其检测方法、流程与相关标准,构建了完整的风险评价指标体系,并提出相应的风险防控策略。研究表明,受地下厂房特殊的空间结构与环境条件影响,其消防喷淋系统存在区别于地面建筑的独特风险因素,需通过多维度检测与系统性综合评价,才能有效保障系统的运行可靠性。
摘要:高层建筑在现代城市发展中具有重要地位,其防火安全直接关系人民群众生命财产安全。本文系统地研究了高层建筑中关键防火构件的检测方法、耐火性能表现及其提升策略,重点探讨了防火门窗、防火卷帘、防火隔墙与楼板以及结构构件防火保护等关键元素的检测技术,分析了耐火极限的判定标准与影响因素,并从设计优化、施工质量控制、新材料应用及维护管理等多维度,提出了提升防火构件耐火性能的综合策略。
摘要:高层建筑由于结构复杂、功能多样且人员密集,消防安全管理面临严峻挑战。本文剖析高层建筑火灾的典型特征及隐患根源,包括火势蔓延迅速、疏散组织困难、外部扑救条件受限以及安全管理责任交叉等,并在此基础上,将消防安全隐患系统地归纳为通道与设施类、设备与系统类、管理与行为类三大类别。针对上述问题,提出以强化防火设备监督与维护为核心的防控策略,具体包括建立日常巡查与定期检测相结合的常态机制;推动物联网、大数据等智能化监测技术应用;完善第三方技术服务机构的监督与评价体系;提升应急处置与救援响应能力。通过一系列策略的实施,旨在为高层建筑的消防安全管理提供科学依据与实践参考,从而有效控制火灾风险,保障人员生命财产安全,助力提升城市公共安全治理水平。
摘要:森林防灭火技术的创新与应用,是提升火灾扑救效率、构建智能化防火体系的关键。研究表明,通过装备升级、智能决策辅助、灭火材料创新及区域联防联控等举措,能够系统性地提高森林火灾防控能力。本文旨在探讨相关技术的创新路径与应用策略,为提升森林防灭火工作的科学化与高效化提供参考。
摘要:本文旨在探索建筑消防防火分隔技术的智能化发展路径,以应对当前建筑消防安全领域所面临的严峻挑战。首先,采用文献研究法,系统梳理国内外相关研究的进展与前沿动态;运用理论分析方法,深入探讨智能化技术在防火分隔场景中的应用机理与核心优势。研究发现,基于智能传感、自动控制、大数据及云计算等技术的融合应用,智能化防火分隔系统能够实现对火灾风险的精准监测与快速响应,从而显著提升建筑消防安全的整体防护效能。
摘要:近年来,物联网技术迅速发展,推动了“智慧消防”从概念走向现实。本文立足物联网技术背景,重点探讨智慧消防在建筑防火检查中的具体应用。基于智慧消防系统架构模型,对智慧消防的基本概念进行概述;分解析物联网技术背景下,建筑防火检查中智慧消防系统的构成,主要包括用户服务中心、数据传输模块、案例分析模块、智能预警模块和反馈处理模块;针对智慧消防在建筑防火检查中的应用,提出实施策略,包括规划并安装智能传感器、建立数据库与智能模型、实施异常分析与分级预警、开展智能化响应与疏散指导、进行系统动态优化与完善,以期为物联网技术赋能的智慧消防系统在建筑防火检查中的高效应用提供理论参考。
摘要:本文系统分析了火灾自动报警系统(FAS)与消防联动控制系统(FSCS)的核心架构与运行机制,重点研究了智能控制算法、多传感器信息融合技术以及基于BIM的管线设计与施工模拟在提高火灾探测准确性、响应速度及系统可靠性方面的应用。同时,通过超高层建筑和上海市某智慧社区的实际案例进行评估。结果表明,智能算法使系统误报率由 15% 下降至 3% ,平均响应时间缩短 20%-30% ,多子系统虽通过有效集成实现协同联动,但仍面临协议兼容性不足与长期维护成本较高等挑战;感烟探测器的平均无故障时间可达15000小时;智能化改造虽导致初期投资增加约30% ,但凭借运维效率提升与误报频次减少,可在5年至8年内实现投资回收,体现出良好的经济性与可持续性。
摘要:电气线路故障引发的火灾,是目前各类火灾中发生频率最高、危害性最严重的事故类型之一。此类火灾的调查工作流程复杂,涉及电气原理、热效应、材料学以及环境因素等多学科知识。本文将从电气线路故障的形成机理、电气设备老化与设计缺陷、电气火灾调查中的关键技术、环境因素与系统稳定性的影响以及相应的防控管理措施五个方面展开研究。通过剖析典型事故案例与各类调查方法,系统梳理电气火灾调查过程中的疑难问题及应对策略,以期为事故调查人员提供理论依据和实践参考,助力提升电气安全管理的整体水平。
摘要:在现代建筑工程中,给排水与消防管线的综合布置是影响施工质量与后期运行安全的关键环节。由于管线系统错综复杂、安装空间有限,施工中常出现管线交叉冲突、排水不畅、检修困难等问题。本文基于工程实际,系统分析管线综合布置的常见难点,并围绕排布原则、技术方法和实施要点展开研究,强调通过BIM(建筑信息模型)技术协同设计、综合支吊架优化、模块化预制安装等现代工程手段,实现对管线的合理布局与高效施工,从而提升工程质量与系统可靠性,为同类工程提供参考与借鉴。
摘要:本文提出一种基于多传感器数据融合的火焰状态智能检测算法,并将其深度整合于环境、健康与安全(EHS)管理体系,旨在通过智能化技术实现对火灾风险的前瞻性防控。该算法以神经网络为框架,融合一氧化碳传感器、烟雾探测器及温度传感器的实时数据,对火焰状态进行精准识别与分类。通过引入有限内存拟牛顿优化技术(L-BFGS)对传统反向传播(BP)算法进行改进,有效地加速了神经网络的训练收敛过程,并显著提升了系统的检测精度。实验结果表明,该算法能够大幅降低火灾预警系统的误报率,同时增强警报发布的及时性与可靠性,从而为EHS管理体系中的火灾应急响应环节提供了快速、准确的决策支持,切实提升了人员安全保障与环境风险管控能力。
摘要:工业厂区的给排水与消防系统是保障生产运行、人员安全与环境稳定的核心基础设施,其设计质量直接关系工厂的生产效率、安全保障与可持续发展能力。当前,传统设计模式普遍存在用水效率低下、污水处理不达标、消防响应迟滞及系统适应性不足等突出问题,难以满足现代工业“高效、安全、环保、智慧化”的发展需求。本文基于工业生产流程特点与安全规范要求,系统探讨给排水与消防系统的优化设计路径,以期为工业厂区的安全、稳定运行与绿色低碳发展提供参考。
摘要:本文提出一种基于图神经网络的森林火灾蔓延路径预测与阻隔策略优化方法。首先,分析森林火灾蔓延过程中所呈现的复杂网络特性,阐明图神经网络在捕捉空间依赖关系与拓扑结构方面的技术优势。在此基础上,构建融合地形、植被、气象等多源异构数据的图结构表征体系。其次,建立能够有效融合时空动态特征的火灾蔓延预测模型,实现对蔓延路径的精准预估。最后,提出基于关键节点识别的防火隔离带布局优化方案,并设计相应的动态资源调配算法与预测-阻隔闭环反馈机制,以期为森林火灾防控提供智能化决策支持。
摘要:城市轨道交通作为大众日常出行的主要交通方式,其消防安全直接关系社会和谐稳定与人民群众的生命财产安全。从轨道交通车站的实际运营环境来看,其往往具有人员密集、空间结构复杂、电气设备繁多等特点,这些客观条件带来了相应的技术挑战与安全隐患。因此,如何进一步加强城市轨道交通建筑的消防安全管理,已成为相关责任单位亟须深入研究的重要课题。本文结合轨道交通车站的实际特点,系统分析了其中存在的消防安全隐患与突出问题,并据此提出了具有针对性的优化策略,以期为完善车站的规划设计、工程建设及运营管理提供参考,从而系统性地提升城市轨道交通的消防安全水平。
摘要:大型公共建筑作为城市现代化的重要标志,其施工期间的防火安全管理直接关系人员安全、财产保障与社会稳定。本文立足我国现行消防安全法规体系,结合大型公共建筑工期长、结构复杂、作业交叉多等特点,深入分析施工阶段强化防火管理的必要性与面临的挑战,并从设计审查、过程控制、设施配置及人员培训等多个维度,提出系统性的管理对策。研究指出,通过完善消防安全责任机制、实施全过程动态风险管控、采取适应性的专项防火技术措施,并持续加强从业人员安全素质培养,可显著提升大型公共建筑施工阶段的火灾防控能力,有效降低火灾风险,为城市建设与安全发展提供有力支撑。
摘要:随着我国城市化进程的不断加速,轨道交通系统在各大城市迅速发展。其中,地下车站因其空间封闭、结构复杂、人员密集等特点,面临着诸多特殊的消防安全挑战。为保障公众出行安全与城市稳定运行,系统识别并科学防控地下车站的消防安全风险具有重要意义。本文从多角度系统地剖析轨道交通地下车站存在的消防安全隐患,并结合实际提出有针对性的防控策略,旨在构建更加可靠的地下车站消防安全体系,切实提升轨道交通系统的整体安全水平。
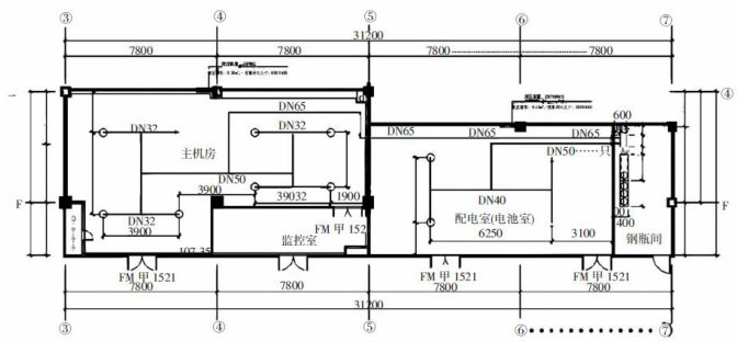
摘要:主机房与配电室气体灭火系统是保障关键设施安全运行的重要技术手段,其运行管理水平直接关系火灾防控的有效性。当前,该类系统在实际应用中普遍存在系统故障率高、误喷风险突出、人员安全意识与专业技能不足等问题,严重制约其功能发挥。为提升系统的可靠性,应从建立健全维护保养制度、强化电气与探测器误喷防护、加强人员持证培训与应急演练、引入智能化实时监控等方面综合施策。研究表明,通过技术升级与管理优化相结合,可显著提高气体灭火系统的安全性与运行效能,为重要场所的消防安全管理提供有效支撑。
摘要:随着城市更新战略的持续推进,老旧小区改造已成为提升居民生活品质、保障民生安全的重要抓手。在此过程中,消防合规性改造尤为关键,对张家港等试点城市而言,其老旧小区消防安全隐患突出,系统化改造势在必行。本文立足张家港市实际,梳理当前老旧小区消防改造中存在的突出问题,如消防设施老化、审批流程复杂、多部门协同不足等,并围绕完善地方技术标准、优化项目审批与管理流程、强化跨部门联动协作等方面,提出具有可操作性的实施路径,旨在为张家港市及其他类似城市的老旧小区消防改造提供系统思路与过程保障,助力改造工作扎实、高效推进,切实提升城市安全韧性与居住安全水平。
摘要:大空间公共建筑因其结构复杂、功能多元、人员密集等特点,火灾防控面临严峻挑战。防火分区作为控制火势蔓延、保障人员安全疏散的核心手段,其设计不仅需遵循技术规范,还需统筹考虑建筑功能适配、结构边界完整性、各系统协同响应及长期运营管理等综合因素。本文在梳理现行规范与设计原则的基础上,针对当前大空间建筑中存在的突出问题,提出结构适应性分隔、功能协同化布局、智能化联动系统和长效运行保障机制等策略,旨在为提升此类建筑的防火安全设计与管理水平提供系统、可行的路径参考。
摘要:地下建筑由于结构封闭且空间形态复杂,在防火分区施工中存在较多技术挑战。本文从地下建筑防火分区的构造要求入手,系统梳理了结构布置复杂、材料选择受限、施工工艺难度大等常见技术难点。针对这些问题,提出了优化结构节点构造、改进耐火封堵技术、实施精细化施工管理等具体对策,以期提升地下建筑的本质防火能力,为今后类似工程提供具有较强可操作性的技术指导。
摘要:施工现场因其环境复杂、动态多变、危险源交织共存,历来是火灾事故的高风险区域。本文旨在系统剖析施工现场火灾事故的关键致因,重点探讨人的不安全行为、物的危险状态及管理缺陷等因素的耦合作用机制。在此基础上,从技术防控与管理体系两个维度,提出以强化动火作业监管、严格易燃可燃材料管控、完善临时消防设施配置、构建全员消防安全责任体系为核心的综合性火灾防控策略,以期为施工企业提供一套科学、系统且具有可操作性的实践框架,从而提升施工现场的本质安全水平,最大限度地预防火灾事故发生并减轻其可能造成的后果。
摘要:随着全球气候变化的不断加剧,高山复杂地形区域的森林火灾扑救难度日益增加,严重威胁着区域生态安全。本文深入分析了该类地区森林火灾扑救面临的四大核心难题,即受地形遮挡与通信条件限制,火情侦察精度较低;因交通不便与垂直运输能力不足,人员与装备投送效率低;扑救作业受复杂地形制约,传统灭火战术难以有效实施;水源保障面临分布不均、输送困难等挑战。针对上述难点,本文提出系统性的应对策略,包括构建立体化、智能化的火情监测预警体系、配置轻量化、模块化的适应性扑救装备、创新多样化扑救方式以推广“以空制火”立体作战模式以及建立多源互补的水源保障机制。研究结果可为提升高山复杂地形森林火灾应急处置能力提供科学支撑。
摘要:大跨度空间建筑因其结构复杂、体量巨大、功能复合等特点,一旦发生火灾,蔓延速度快、扑救难度高,极易引发重大人员伤亡与财产损失。传统的灭火技术与装备配置难以适应其空间尺度和火灾发展特性,亟须建立科学、高效的应对体系。本文聚焦大跨度空间建筑火灾的典型特征,系统探讨扑救的关键技术路径,并从固定系统、高空装备、智能终端与应急布控等方面提出消防装备配置策略,旨在提升火灾处置能力与空间安全保障水平。
摘要:高层住宅建筑避难层作为火灾等紧急情况下保障人员安全的核心设施,具有不可替代的重要作用。本文系统分析了避难层在紧急避难、疏散中转及救援指挥等方面的功能,深入探讨了当前普遍存在的空间利用不合理、设施维护不到位、功能设计单一等问题。在此基础上,从优化空间布局、完善设备配置、拓展功能复合性等角度提出有针对性的提升策略,并进一步围绕信息共享机制、救援流程协同和专业培训体系等方面,探讨消防救援与避难层的高效协同路径,以切实提升高层住宅建筑的应急响应能力,筑牢居民生命安全保障体系。
摘要:随着城市化进程的不断加速,地铁作为大运量公共交通的骨干系统,其运营安全已成为城市公共安全的核心组成部分。地铁隧道空间封闭、通风条件受限,一旦发生火灾,高温、浓烟及有毒气体会沿隧道迅速蔓延,不仅严重威胁乘客和工作人员的生命安全,还给应急疏散与消防救援带来巨大挑战。在此背景下,应急照明与疏散指示系统作为隧道火灾应急救援体系中的关键设施,其功能可靠性直接决定了人员逃生效率与救援行动的安全性。本文基于地铁隧道火灾的特性与应急救援难点,系统分析了应急照明与疏散指示系统的组成结构及技术要求,重点探讨了该系统在人员疏散引导、救援路径保障和危险区域警示等方面的核心作用。针对当前存在的照度不足、标志易被遮挡、系统联动性差等问题,提出了有针对性的优化设计策略与运维管理建议,旨在为地铁运营单位完善应急设施配置、提升隧道火灾应急救援能力提供理论依据与实践参考,同时也为相关技术标准的修订与升级提供有益借鉴,具有重要的理论价值与现实意义。
摘要:剧毒化工装置泄漏事故因其扩散迅速、致死剂量低、处置时间紧迫等特点,单一部门往往难以迅速、有效应对。针对这一问题,本文构建了一套以事故阶段为主线、融合消防应急与安全保卫的协同处置分析框架。该框架通过情景推演与综合演练,对报警确认、警戒封控、人员疏散和毒物监测等关键环节进行量化评估与优化。研究表明,通过将安保力量前置于预案制定与现场处置的各个环节,实现消防与保卫机制的深度融合,可有效提升剧毒泄漏事故的整体响应效率与风险控制能力。该协同模式为同类危险化学品装置的安全治理提供了可借鉴、可复制的实践路径。
摘要:消防灭火救援行动常面临复杂且高危的恶劣环境,要求消防救援人员在准确判断作战阵地与操作区域安全性的基础上,提前部署应急方案,以兼顾救援效率与自身安全。本文对灭火救援行动中面临的主要风险进行简要分析,从战术选择、撤离通道设置、团队协同三个层面,系统阐述紧急避险的具体措施。同时,围绕个人防护装备、安全专业技能、现场指挥能力以及致险因素管控四个维度,提出提升灭火救援行动安全防护水平的对策,以期为提高消防灭火救援行动的效能与安全性提供参考。
摘要:防火监督检查作为消防安全管理体系的核心构成部分,其流程复杂且涉及环节众多,这为智能化技术的引入与应用创造了重要空间。消防监督部门应充分认识智能化技术在提升工作效能、推动管理模式革新方面的显著优势,系统推进相关技术在防火监督检查中的深度应用,从而全面提升我国消防安全管理的现代化与专业化水平。本文将系统阐述智能化技术在防火监督检查中的积极作用,梳理当前该技术在实践中的应用现状与存在的主要问题,并据此提出面向未来的发展路径与建议,以期为相关领域的进一步研究与实践提供参考。
摘要:在消防体制改革后,防火监督管理工作面临职责体系重塑与风险形态叠加的双重挑战,其重要性愈发凸显,智能化、精准化已成为其必然的发展趋势。本文立足城镇化快速发展背景,梳理改革对防火监督管理职责、机制及方式带来的影响,结合数字化技术应用、制度完善与多部门协同等实践路径,针对当前存在的监管力量不足、新兴业态场所监管难等突出问题,提出系统性的解决策略,以期为增强防火监督实效、保障公共消防安全提供参考。
摘要:随着城市化进程的加快,社会对消防安全的要求不断提升,亟须构建更高效、精准的消防监督体系以保障城市安全。传统消防监督模式存在人力投入大、响应滞后、精准度不足等问题。人工智能技术包括大数据分析、机器学习和图像识别等,为消防监督带来了新的技术路径。本文聚焦人工智能在火灾隐患智能识别、消防设施状态实时监测与应急决策优化等方面的应用价值,并提出提升消防监督效能的关键路径,包括完善跨部门数据共享机制、强化算法模型的场景化适配、构建人机协同的智能监督体系、加强消防与人工智能复合型专业人才培养。通过系统推进以上举措,可为消防监督智能化转型提供理论支撑与实践参考。
摘要:消防安全是维护社会公共安全与人民群众生命财产安全的重要基石。消防监督检查工作通过系统开展隐患排查与督促整改,对预防和减少火灾事故具有关键作用。本文聚焦消防监督检查中的隐患排查与整改实施路径,分析当前的常见问题与改进方向,以期为提升监督检查效能、构建常态化火灾防控机制提供参考与借鉴。
摘要:在智慧城市与数字化应急管理快速发展的背景下,传统消防设施监控方式存在信息孤岛、响应滞后、管理效率低等问题,难以满足现代城市火灾防控需求。物联网技术具备感知全面、传输实时、处理智能等优势,为消防设施远程监控系统建设提供了新的技术路径。本文围绕系统架构设计与关键技术集成展开研究,提出一套基于物联网的消防设施远程监控系统方案,深入探讨感知设备、通信网络、数据平台之间的集成机制,旨在提升城市消防安全管理水平。
摘要:城市火灾风险日趋复杂,传统依赖“人工巡查 + 纸质台账”的监管模式已难以满足时效性与精准性的要求。本文在梳理国内多地试点实践的基础上,对人工智能技术在消防监督管理中的应用现状进行系统评估。分析发现,由于存在数据标准缺失、特殊场景样本不足、技术与业务融合不深、资金与复合型人才短缺等制约因素,当前人工智能应用仍呈现碎片化、浅层化的特点,尚未形成规模化、体系化的落地效应。因此,本文提出以“统一数据底座、场景定制算法、闭环技术链”为核心的三位一体推进路径,并建议配套建立标准规范体系、多元化资金保障机制以及“培训-学历-实践”相融合的复合型人才培养体系等支撑措施,从而为构建全国统一、智能协同的现代化消防监管体系提供系统性的实施路线。
摘要:在水利水电工程施工过程中,火灾风险较为突出,临时用电、动火作业、可燃材料堆放以及复杂环境等因素均可能诱发安全事故,防火监测任务十分紧迫。当前监测手段仍主要依赖人工巡查,存在信息孤立、响应滞后、应急协同不足等问题,难以满足复杂多变的施工环境需求。本文从火灾隐患形成机制入手,梳理现有防火监测技术的局限,进而提出系统优化方向。通过部署智能感知设备实现隐患动态监测,借助物联网平台打通信息孤岛、促进数据互通,利用预测分析模型提高风险预警的时效性,并与应急指挥系统深度融合,增强协同处置能力。研究表明,构建集智能化监测、网络化协同和预测化预警于一体的综合防控体系,能够显著提升施工阶段的火灾风险管控能力,对保障水利水电工程的整体安全性具有重要的现实意义。
摘要;碳纤维增强复合材料以其卓越的比强度和优异的耐腐蚀性能,在建筑结构中的应用日趋广泛。然而,其聚合物基体的可燃性以及在高温环境下显著的性能退化问题,也引发了对其防火安全性能的广泛关注。本文系统地分析了该材料在建筑应用中的防火性能与热稳定性,重点探讨其防火机理、高温下的力学行为与失效模式。
摘要:土建施工现场的消防与临时用水系统是保障工程安全、支撑施工顺利进行的关键基础设施。其合理设计与高效管理,对降低火灾风险、维持正常作业秩序具有至关重要的作用。本文系统梳理了施工现场消防与临时用水系统的构成与布局特点,分析了其在风险防控、资源整合及成本控制等方面的核心功能,指出当前实施中存在的规划协调不足、资源配置矛盾、动态管理机制缺失等主要问题,并提出以智能技术赋能与管理创新为核心的优化策略与实施路径。研究表明,通过构建数字化管控平台、推行网格化安全责任制、实现对水资源的动态调度与多功能复用,能够显著提升系统的可靠性、响应效率与经济性。
摘要:土木工程施工现场消防风险具有复杂性与动态性,主要表现为风险来源多元、管理环节交错。本文从施工工艺、空间布局及管理体系三个维度系统识别风险因素,并剖析其背后存在的安全意识薄弱、责任界定不清、制度执行不力等现实问题。在此基础上,从源头预防、过程控制与人员培训等多层面提出系统性的防控对策。研究表明,只有通过全链条制度落实,实现人防、物防与技防的有机结合,才能有效遏制施工现场火灾风险,切实保障工程安全与施工进度。
摘要:将VR技术应用于消防应急救援专业学生的心理素质训练,对提高其在高压高危环境下的救援综合能力具有重要的现实意义。本文阐述了VR技术在心理素质训练中的优势,包括能有效贴合职业需求、突破传统训练局限以及促进多学科交叉融合,进而分析当前该技术在应用中存在的技术融合度不足、场景设计单一等现实问题。在此基础上,提出若干有针对性的优化策略,如构建高仿真训练场景、创新多元化训练模式、建立科学化的效果评估体系等,以期为推动VR技术在消防应急救援专业心理训练中的深入应用提供参考。
摘要:市政给排水管网是城市消防供水系统的重要物理依托,其运行可靠性直接关系公共安全与灾害防控效能。伴随城市化进程的持续加速和极端气候事件频发,传统消防供水体系在水源保障、设施运维、应急响应等方面面临系统性挑战。因此,构建科学、可靠的消防供水保障模式,已成为提升城市韧性、维护社会秩序稳定的关键举措。本文聚焦市政给排水管网与消防供水的协同机制,在分析二者内在关联、现存问题与制度价值的基础上,从责任协调、设施规划、技术融合、机制联动等多维度提出系统优化路径,旨在为推动现代城市防灾体系构建与应急能力提升提供理论支持与实践参考。
摘要:在现代建筑中,高性能混凝土得到广泛应用,其高温环境下的力学性能退化规律与相应的防火设计优化,是确保结构安全与耐久性的关键问题。本文系统梳理了高性能混凝土的材料特性与微观结构特征,深入探讨了其在高温条件下力学性能的退化规律与内在机理,并从材料改性、结构设计、系统防护三个层面,提出了提升耐火性能的有效措施。研究表明,高性能混凝土在高温作用下表现出显著的强度与刚度退化,退化程度受温度水平、冷却方式、材料配比等多种因素影响。通过优化多元胶凝体系、采用纤维增强技术、施加防火涂层以及改进结构构造,可显著提升其耐火性能与高温后的残余承载能力。
摘要:随着国家和社会对消防工程专业人才的需求趋于专业化、多元化,高校消防工程专业教学模式也需要不断更新。本文以消防工程专业的毕业设计教学为例,提出一种融合AI与Pathfinder的“多模态AI智能体 + 教师”双元协同的毕业设计动态仿真教学模式。引入Pathfinder仿真软件,结合AI智能体线上指导,提升学生的仿真与AI工具应用能力,为应用型本科院校教学改革提供参考。
摘要:本文从责任体系、技术措施、人员管理及监管机制等维度,系统剖析了当前建筑施工防火管理存在的问题根源,并提出完善消防责任链条、强化技术设施配置、深化全员教育培训、引入信息化动态监测以及创新协同监管模式等综合对策。研究表明,只有坚持制度刚性落实与现代科技赋能双轮驱动,才能切实提升施工阶段的火灾防控能力,有效降低火灾事故发生概率,从而为保障工程建设安全、维护人民群众生命财产安全提供坚实支撑。
摘要:本文聚焦懒人吹风机在家庭消防安全管理中的潜在价值,系统分析了传统吹风机常见的安全隐患,包括高温过热引燃周边可燃物、设备老化与电路设计缺陷以及在不适宜的环境中使用等问题。在此基础上,详细阐述了近年来吹风机安全技术的演进,如智能温控与自动断电机制、阻燃材料与结构设计的提升以及针对不同使用场景的功能适配等改进方向。研究表明,懒人吹风机在提升家庭消防安全性方面具有多方面优势。其内置的过热保护功能可有效防止因持续高温引发的火灾风险;人性化的便捷设计减少了因操作失误带来的安全隐患;智能控制技术通过动态调节风温、记忆用户习惯、实时监测放置状态及异常自动关机等功能,进一步强化了安全防护体系。本文旨在为家庭用户提供科学的选购与使用指导,助力其通过合理选用吹风机降低火灾发生概率,提升居家消防意识,从而为构建安全、和谐的家庭生活环境提供支持。
摘要:新疆地域广袤、气候干旱,化工与能源产业密集分布,使火灾防控与应急救援工作面临高火险环境、危化品泄漏风险以及极端自然环境救援等多重特殊挑战。在此背景下,高职院校的消防救援技术专业承载着培养满足本地需求、适应实战要求的应急救援人才的关键使命。本文将结合新疆地域辽阔、化工产业集中、灾害类型独特等现实特点,系统分析该专业在目标定位、课程体系构建以及特色发展等方面的状况。针对专业标准化管理的迫切需求,进一步提出构建全要素覆盖的课程体系标准框架、推进实训基地智能化管理、引入准军事化育人模式、建立“双轨并行”师资认证机制、实施教学质量动态监测等一系列发展对策。